Thiết Kế Không Gian Làm Việc Ấm Áp Thoải Mái
Thiết Kế Không Gian Làm Việc Ấm Áp Thoải Mái – Không gian văn phòng luôn ảnh hưởng đến tinh thần làm việc của mỗi người. Do đó, một văn phòng làm việc mang lại sự ấm áp, thoải mái sẽ giúp tăng năng suất và hiệu quả công việc.

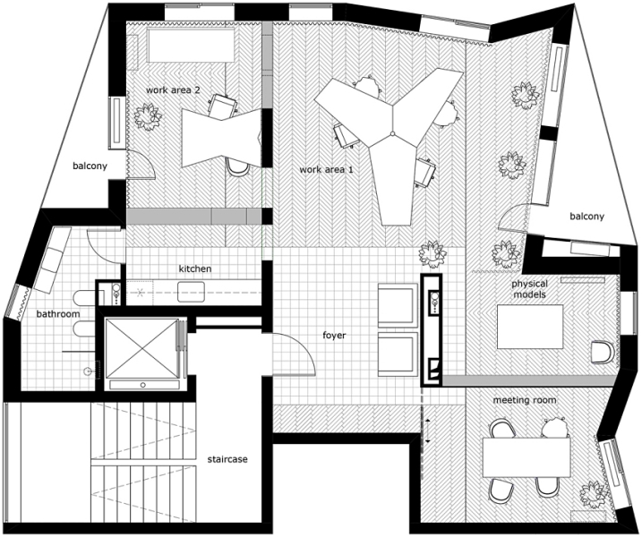
“Tạo ra một không gian làm việc ấm áp” là ý tưởng thiết kế chính của công ty thiết kế Bulgari Another Studio cho studio của riêng mình.

Với không gian các bức tường màu trắng, văn phòng được thiết kế với sàn nhà, bàn ghế, tủ kệ màu gỗ, tạo sự ấm áp.

Vách ngăn các không gian khác nhau bằng tủ gỗ dán, chia 2 khu vực làm việc, phòng họp, bếp nhỏ, nhà vệ sinh và sân thượng.

Những vách ngăn bằng gỗ tạo thành một thư viện mở, đồng thời tách các khu vực trong khi vẫn duy trì kết nối trực quan giữa các không gian.

Toàn bộ sàn được lát bằng sàn gỗ sồi, được ghép bằng xương cá và vát để mở rộng tổng thể và cảm nhận bầu không khí tự nhiên.

Xen giữa các khu vực còn được bố trí cây xanh tạo không gian tươi mới, ấm áp.

Thiết kế cửa kính giúp không gian căn phòng luôn tràn ngập ánh sáng tự nhiên.

Một phần sàn nhà được trang trí bằng gạch cổ điển có hoa văn retro để phân chia khu vực, mang lại không khí làm việc thoải mái.

Một bếp nhỏ được bố trí trong không gian làm việc.

Phía trong là một nhà vệ sinh cũng được trang trí với gạch cổ điển độc đáo cùng gương lớn.


Mọi thông tin xin vui lòng liên hệ:
CÔNG TY CP SẢN XUẤT THƯƠNG MẠI VÀ DỊCH VỤ GÍA TRỊ VIỆT (VIETVALUE)
Showroom: Số 18/279 Đội Cấn, Liễu Giai, Ba Đình, Hà Nội
Xưởng SX Gỗ: Khu công nghiệp Bình Phú - Thạch Thất - Hà Nội
Xưởng SX Mây Nhựa: TT Kim Bài, Thanh Oai, Hà Nội.
Hotline: 0946.99.11.55
Website: www.noithatmaynhua.vn
Email: noithatmaynhua.vn@gmail.com
Tage: thiết kế nội thất, thiet ke noi that, thiết kế nội thất giá rẻ, thiet ke noi that gia re, ...
Xem thêm:
1. Gỗ Melamine là gì? Tại sao gỗ Melamine được sử dụng trong nội thất.
2. Gỗ Veneer là gì?
3. Phòng khách tân cổ điển - Khách hàng Ecolife Capitol - Lê Văn Lương
4. Nội thất tân cổ điển đẹp - Khách hàng Thăng Long No 1
BÀI VIẾT KHÁC
